
الصور

عرض على الخريطة

فيديو



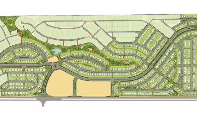
كمبوند جراند هايتس Grand Heights Compound يتمتع بالرقي والهدوء والتصميم الهندسي الفاخر، بالإضافة إلى توافر الخدمات الشاملة الأساسية والترفيهية، مما يوفر للسكان حياة كريمة، ويجعل من جراند هايتس 6 اكتوبرفرصة استثمارية لا تعوض، خاصة مع توافر المساحات الطبيعية الخضراء والمسطحات المائية ذات المياه الزرقاء، والمنشآت الزجاجية، ولمعرفة المزيد عن تفاصيل جراند هايتس 6 اكتوبر يرجى متابعة المقال.
يتمتع الكمبوند بالموقع الحيوي الذي يجعل الإقبال عليه شديد من قبل العملاء.
أهم المعالم القريبة من كمبوند جراند هايتس:
كل ما تريد معرفته عن اسماء كمبوندات حدائق أكتوبر
قامت الشركة المالكة للمشروع بتخصيص مساحة كبيرة من أجل تنفيذه بالكامل في مدينة السادس من أكتوبر، حيث تبلغ مساحته الإجمالية تقريبًا 900 فدان، تستحوذ المنشآت والمباني السكنية على نسبة 18% فقط من هذه المساحة الشاسعة، بينما تم تخصيص باقي المساحة للمرافق الخدمية والمساحات الخضراء الطبيعية.
يوجد في جراند هايتس مدينة السادس من أكتوبر فيلات بمساحات متفاوتة تتميز بالتصميمات الفاخرة، تشمل فيلات مستقلة، تاون هاوس راقي، وتوين هاوس فاخر، حيث تتراوح المساحات ما بين 243 متر مربع حتى 573 متر مربع، وتتمثل المساحات بالتفصيل في التالي:
تستحوذ المباني الداخلية والتجارية على نسبة 18% من إجمالي مساحة جراند هايتس 6 اكتوبر لتوفير الراحة للعملاء.
من أهم المزايا التي يتمتع بها الكمبوند وتجعل الإقبال عليه شديد من قبل العملاء، هو الاهتمام بخدمات الصيانة الدورية للوحدات، والتي تستمر طوال الفترة المحددة في العقد، والتي تشمل ما يلي:
على الرغم من موقع كمبوند جراند هايتس 6 اكتوبر المتميز والخدمات الشاملة والتصميمات الفاخرة والمزايا الأخرى، إلا أن أسعار الوحدات في جراند هايتس 6 اكتوبر تعد تنافسية للغاية مقارنة بأسعار الوحدات في المشروعات السكنية الأخرى في نفس المنطقة أو الأماكن المجاورة، مما يسمح لجميع العملاء باختلاف الشرائح بامتلاك وحدة سكنية مميزة دون عناء.
أما بالنسبة لأنظمة الدفع، فإنها ميسرة للغاية، حيث أتاحت الشركة المالكة تسهيلات كبيرة تتمثل في دفع مقدم تعاقد يبدأ من 15% فقط من قيمة الوحدة، ويتم دفع المبلغ المتبقي على أقساط بدون فوائد نهائيًا لمدة سبعة أعوام، علمًا بأن عقود التمليك يتم توثيقها رسميًا في الشهر العقاري.
يوجد أنظمة استلام متنوعة، تشمل استلام فوري للوحدات الجاهزة التابعة إلى المرحلة الأولى، كما يوجد نظام استلام عام 2019 م، بالإضافة إلى نظام استلام للوحدات بحلول عام 2021 م.
يحظى "Compound Grand Heights" بالعديد من المزايا، لكن قد يشعر البعض بخيبة أمل بسبب تركيز الشركة على توفير الشقق فقط. لتلبية هذا الطلب، وفرت الشركة شققًا بمساحات كبيرة تماثل مساحة الفلل، مع توفير جميع المرافق والخدمات اللازمة، مما يوفر للسكان تجربة سكنية متميزة ومتكاملة.
شركة كواديكو العقارية هي الشركة المالكة لمشروع جراند هايتس في مدينة السادس من أكتوبر، وهي من الشركات التي تمتلك سمعة طيبة في السوق المصري، علمًا بأنها عبارة عن شركتين مدمجتين معًا.
الأولى هي شركة وادي النيل التي تمتلك خبرة تمتد لأعوام طويلة في مجال التطوير والاستثمار العقاري، أما الثانية هي الشركة الوطنية العقارية.
نتج عن هذا التعاون الثنائي عدة مشروعات سكنية ضخمة، تعد الأفضل على مستوى جمهورية مصر العربية، والشرق الأوسط بأكمله.
مدينة 6 أكتوبر شهدت نمواً ملحوظاً وأصبحت مركزاً هاماً للسكن الفاخر في مصر، بفضل موقعها القريب من القاهرة. وازدهرت فيها مجموعات سكنية متميزة مثل كمبوند جراند هايتس.
يتمتع هذا الكمبوند بموقع متميز يجعله نقطة جذب للباحثين عن الفخامة والراحة. في الجوار، تتواجد عدة كمبوندات أخرى بمواصفات راقية:
1.كمبوند أبها أكتوبر: مشروع طموح من شركة SRD يضم شقق وفيلات بتصاميم حديثة ومجهز بكافة المرافق اللازمة لحياة متكاملة، محاط بمناظر طبيعية خلابة، يوفر بيئة سكنية مثالية للعائلات.
2. كمبوند ماونتن فيو آي سيتي أكتوبر: يمتاز بتصميمه المعماري الفريد الذي يلفت الأنظار، ويقدم مجموعة واسعة من الوحدات السكنية الفاخرة. يتواجد على مقربة من مول تجاري كبير، مما يضيف إلى سحره وجاذبيته.
3. كمبوند اكتوبر بلازا سوديك: يبرز بتصميماته العصرية ويوفر مجموعة من المرافق الراقية مثل مناطق لعب الأطفال ومناطق للاسترخاء، مما يجعله وجهة مثالية للراغبين في تجربة حياة هادئة ومرفهة.
4. كمبوند بالم باركس: يتكون من شقق وفيلات بتصميمات معاصرة، تحيط بها المساحات الخضراء والمرافق المتكاملة مثل الملاعب وحمامات السباحة، يضمن لسكانه تجربة سكنية راقية وممتعة.
5.كمبوند كيفا صبور: يعد تحفة معمارية تجمع بين الحداثة والتراث، بموقع استراتيجي قريب من جراند هايتس وبه مجموعة من المرافق المتقدمة التي تلبي كافة الاحتياجات اليومية للسكان.
هذه المجمعات تعد من أبرز الخيارات في مدينة 6 أكتوبر وتعكس تنوعًا في الاستثمارات العقارية وجودة الحياة التي توفرها لسكانها.
حديقة خاصة
مسبح خاص
مسبح مشترك
موقف سيارات
منطقة بيع بالتجزئة
ممرات للعجل
طرق للمشاة
نادي
مركز طبي
منطقة تجاريةسيب بياناتك وهيتصل بيك خبير في العقارات في أقرب وقت.