
الصور

عرض على الخريطة

فيديو

يعد كمبوند بادية بالم هيلز من أهم المشروعات العقارية التي قامت شركة بالم هيلز بتنفيذها في مدينة السادس من أكتوبر، يتميز المشروع بالرفاهية والخدمات الشاملة، التي تحقق للعملاء حياة كريمة وسط المساحات الخضراء والإطلالة الساحرة، ولا ننسى موقع كمبوند بادية بالم هيلز الحيوي الذي يزيد من أهمية المشروع وزيادة الإقبال عليه.
يتمتع كمبوند Badya بالموقع المتميز في مدينة السادس من أكتوبر، حيث يقع بالقرب من العديد من الأماكن الحيوية.
أهم المعالم القريبة من كمبوند بادية 6 أكتوبر:
تُعد "بلو بادية" في أكتوبر إبداعاً حقيقياً من شركة بالم هيلز العقارية، إذ تثبت معايير جديدة للسكن الفاخر داخل أحد أرقى المجمعات السكنية. هذا المشروع يحتل مساحة كبيرة ويحتوي على رقعة واسعة خضراء، موفراً إطلالات رائعة على المناظر الطبيعية التي تبعث على الاسترخاء والسكينة. الشقق المتوفرة ضمن المرحلة تتراوح مساحاتها من 60 إلى 107 متر مربع، مصممة لتعزيز تجارب السكن بكلراحة وأناقة.
تفخر "بلو بادية" بتقديم مجموعة من الخدمات المميزة التي تعكس التزام الشركة بضمان جودة الحياة لسكانها. يُمكن للسكان الاستفادة من كلوب هاوس شامل وصالة رياضية مجهزة بأحدث المعدات، بالإضافة إلى مناطق مخصصة للعب تلائم الأطفال والكبار على حد سواء، مما يجعل كل يوم داخل هذه المرحلة تجربة لا تُنسى.
قدمت شركة بالم هيلز العقارية تطويراً جديداً يُعرف بمشروع بوليفارد تاورز أكتوبر. يمتاز المشروع بوجود عدة مباني سكنية متعددة الطوابق، توفر شقق بتصميمات راقية ومتنوعة. تتراوح الوحدات السكنية من شقة واحدة إلى ثلاث غرف نوم، مما يمنح العملاء خيارات متعددة لتختار ما يناسب احتياجاتهم وأذواقهم الخاصة.
تتوفر شقق بغرفة نوم واحدة تبدأ مساحتها من 76 مترًا مربعًا وتصل حتى 96 مترًا مربعًا. أما الشقق ثنائية الغرف فتتراوح مساحتها بين 145 و173 مترًا مربعًا. كذلك، هناك الشقق التي تحتوي على ثلاث غرف نوم، بمساحات تقع بين 171 و172 مترًا مربعًا. بالإضافة إلى ذلك، يوجد خيارات للبنتهاوس تبدأ مساحتها من 159 مترًا مربعًا، مع إمكانية الاستمتاع بروف يبدأ من 98 مترًا مربعًا.
قدمت شركة بالم هيلز عروضًا سعرية تنافسية تبدأ من 6,765,000 جنيه مصري، مع إمكانية شراء الوحدات بواقع دفع يبدأ من 0% مقدم، واستكمال سداد المبلغ على مدار 10 سنوات. هذه الفرصة تعد فرصة مميزة وحصرية للاختيار من بين مجموعة واسعة من الوحدات السكنية والاستفادة من ميزات التصميم والخيارات المعروضة.
تتألق منطقة DAE كجزء حيوي ولافت ضمن التوسعات الجديدة لمشروع بادية أكتوبر، هذا المحور السكني الراقي ينتشر على مساحة واسعة ويضم 158 وحدة بتصاميم متنوعة تشمل الفيلات والتاون هاوس. يمكن للسكان اختيار المساحة التي تلائم رغباتهم واحتياجاتهم الخاصة، مما يضفي طابعاً شخصياً وفريداً. وقد طرحت شركة بالم هيلز سلسلة من الأسعار المنافسة بداية من 34,400,000 جنيه مصري، بالإضافة إلى خيارات مرنة للدفع تمتد عبر عدة سنوات دون أي أعباء فوائد، مما يجعلها فرصة استثمارية لا تعوض للراغبين في تملك عقار خاص في هذا المجمع الفخم.
في إطار التوسعات المستمرة لشركة بالم هيلز للتطوير العقاري، قدمت الشركة أحدث مراحلها السكنية ضمن مشروع بادية أكتوبر، المرحلة المسماة RAE، التي تجسد الترف والابتكار في التصميم. تتميز هذه المرحلة بإحتوائها لتنوع فريد من نوعيات الوحدات السكنية التي تشمل شققاً ومنازل تاون هوم، جميعها تتبع أعلى المعايير العالمية في البناء والتصميم. تضمنت الشركة في تخطيطها أن تشتمل المرحلة الجديدة على عدد وافر من الوحدات لتلبية الطلب المتزايد. كذلك، تقدم الشركة مجموعة من الأسعار التنافسية التي تبدأ الوحدات في المرحلة RAE بسعر يصل إلى 11,400,000 جنيه مصري، مؤكدة على تقديم قيمة استثنائية للمقيمين الباحثين عن الإقامة في أرقى المناطق.
تطلق "بالم هيلز" أحدث مشروعاتها السكنية تحت اسم "SIGNATURE COURTYARDS" ضمن إطار كمبوند بادية أكتوبر، وتتميز هذه المرحلة بتنوع فريد في الوحدات السكنية التي تتنوع مساحاتها وأنماطها لتناسب تطلعات وأذواق الجميع. تم تصميم هذه الشقق المترفة بلمسات عبقرية من قبل المهندسة المعروفة منى حسين، التي أضافت تفاصيل ديكورية مبتكرة تعكس الفخامة والجودة. يقام المشروع على مساحة واسعة ويضم حدائق خصبة تبعث على الراحة والاسترخاء، مما يجعله استثماراً مثالياً لمن يبحث عن السكن في مكان يجمع بين الأصالة والمعاصرة. يبدأ سعر الوحدة من 9,000,000 جنيه مصري، وما زال المشروع قيد التطوير لضمان أفضل مستويات الرفاهية والراحة لكافة العملاء.
تمتع بفرصة استثنائية لامتلاك منزل أحلامك في قلب مشروع بادية من بالم هيلز، حيث تجد فلل استثنائية وشققاً فاخرة. هذه المرحلة الجديدة، التي لا تزال تحت التطوير، تقدم خيارات متنوعة تلائم مختلف الأذواق والاحتياجات، بداية من 20 مليون جنيه مصري. لا تفوت فرصة العيش في بيئة تعزز الرفاهية والسكينة لك ولعائلتك.
تتميز المرحلة الجديدة من مشروع بادية التي تطوره شركة "بالم هيلز" العقارية في قلب الشيخ زايد بتقديمها تجربة سكنية فاخرة بمواصفات عالمية. تشتمل المرحلة على وحدات سكنية متنوعة تلبي رغبات العملاء بدءًا من استوديوهات إلى شقق فسيحة وبنتهاوس مزودة بديكورات أنيقة صُممت على أيدي أمهر المهندسين.
تتمتع هذه المرحلة بموقعها الاستراتيجي الذي يُسهل الوصول إلى النقاط الحيوية في المدينة، إذ تقع بالقرب من الطرق الرئيسية مثل الطريق الدائري وطريق الواحات ومحور 26 يوليو، مما يجعل الوصول إلى مراكز التسوق الكبرى مثل مول مصر وميدان جهينة لا يستغرق أكثر من دقائق.
"بالم هيلز" لم تقتصر على توفير وحدات بتصاميم راقية فقط، بل قامت أيضًا بطرح أسعار تنافسية تبدأ من 6,000,000 جنيه مصري، مع خيارات مرنة للدفع تسمح بسداد ثمن الوحدة على مدار عشر سنوات وبدون مقدم. تمتاز هذه المرحلة بخدماتها المتكاملة التي تحقق مختلف متطلبات السكان من الرفاهية والأمان.
بهذا، تستمر بادية في كونها وجهة مثالية للراغبين في تجربة سكن غنية ومحاطة بجميع المرافق والخدمات ليست فقط تنفس عن الطبيعة الخلابة وإنما أيضًا عن أعلى مستويات الراحة والرفاهية.
يتميز المشروع بتوافر الخدمات الترفيهية والأساسية المتكاملة، والتي من أبرزها ما يلي:
يتميز مشروع بادية بالم هيلز أكتوبر بالتصميم الراقي والإنشاءات الهندسية العصرية التي تضاهي الإنشاءات الأوروبية العصرية، وذلك بسبب التعاون مع نخبة من أكبر الاستشاريين الهندسيين والمصممين.
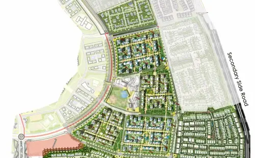
تم تخصيص مساحة شاسعة من أجل تنفيذ المشروع، والتي تبلغ 3000 فدان، مع العلم أن المشروع يحتوي بداخله على ستة أحياء سكنية، كل حي يتضمن المنطقة الخدمية الخاصة به لخدمة السكان، والتي تتضمن نوادي وجامعات وغيرها، وتقع على مساحة 360 فدان تقريبًا.
من المنتظر أن يتم الاعتماد على الطاقة الشمسية النظيفة لتوليد 30% من الكهرباء، كما سيتم خفض نسبة استهلاك المياه عن المدن الأخرى بنسبة تصل إلى 20% تقريبًا، مما ينتج عنه خفض درجات الحرارة عن المدن المجاورة بواقع ثلاث درجات مئوية.
يحتوي المشروع بالكامل على حوالي 1040 وحدة وحوالي 340 فيلا مستقلة، بإجمالي استثمارات بلغت 2.7 مليار جنيه مصري.
مساحات الوحدات
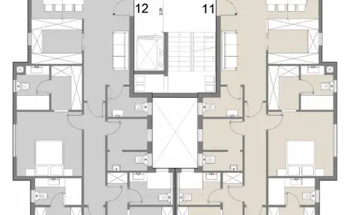
يحتوي على وحدات سكنية متنوعة تشمل فيلا مستقلة، جراند فيلا، توين هاوس، تاون هاوس، وشقق منفصلة، مع العلم أن مساحات الوحدات متفاوتة حتى تناسب جميع الأذواق والاحتياجات، حيث تبدأ مساحات شقق للبيع في بادية بالم هيلز من 86 متر مربع كحد أدنى، وتصل إلى 600 متر مربع بالنسبة لـ فيلا مستقلة للبيع في بادية 6 أكتوبر ، مع العلم أن مساحة المباني تبلغ 350 متر مربع، وتتمثل المساحات فيما يلي:-
على الرغم من الخدمات المتعددة والتصميم الهندسي الراقي والخدمات المتكاملة، بالإضافة إلى موقعه الاستراتيجي، إلا أن اسعار كمبوند بادية مناسبة للغاية ولا تقبل المنافسة مع المشروعات الأخرى المجاورة في نفس المنطقة، حيث تناسب جميع العملاء بمختلف الشرائح والفئات.
كما وفرت الشركة المالكة أنظمة سداد ميسرة وتسهيلات هائلة للعملاء مقابل شراء وحدة في بادية كمبوند، حيث يتم دفع مقدم حجز وتعاقد قدره 10% من إجمالي السعر، وسداد باقي المبلغ بتسهيلات كبيرة على مدار ثمانية أعوام كاملة.
أكتشف الان أفضل كمبوند في 6 اكتوبر.
يتميز "Compound Badya" بمجموعة واسعة من المميزات، لكن قد يعتبر البعض أن موقعه على أطراف مدينة أكتوبر يجعله بعيدًا نسبيًا عن المناطق الحيوية. ومع ذلك، تحيط بالمدينة شبكة طرق ومحاور رئيسية موسعة، مما يربطها بشكل فعال بجميع المناطق داخل القاهرة وخارجها، مما يسهل الوصول إليها ويقلل من زمن الانتقال.
شركة بالم هيلز العقارية هي المالكة لمشروع باديه بالم هيلز، وهي واحدة من أكبر الشركات في مجال التطوير العقاري في السوق المصري، تأسست عام 2005 م، وقامت ببناء العديد من المشروعات الضخمة التي جذبت الكثير من العملاء، والتي يبلغ عددها 26 مشروع على إجمالي مساحة تقدر بحوالي 27 مليون متر مربع في جمهورية مصر العربية.
من أهم أعمال شركة بالم هيلز السابقة ما يلي:
استكشف فرص السكن والاستثمار الفاخرة في قلب منطقة 6 أكتوبر، حيث يبرز كمبوند بادية بالم هيلز كنقطة محورية للرقي والتميز.
يتصدر هذا الكمبوند قائمة الخيارات بفضل موقعه المتميز الذي يتيح الوصول السريع إلى نقاط الجذب الرئيسية بالمدينة وقربه من مراكز الخدمات الأساسية.
تعرّف على المجمعات السكنية الفاخرة القريبة، التي تتمتع بمواقع استراتيجية وتصاميم عصرية، وتوفر تنوعاً في الأحجام والأسعار، لتلبي الاحتياجات المختلفة:
1- كمبوند جرين 5: يقدم لك الرفاهية والتصميم العصري، حيث يقع على مسافة دقائق من بادية بالم هيلز، مما يجعله خيارًا مثاليًا للراغبين في الهدوء، مع إمكانية التنقل السريع لوسط المدينة بفضل قربه من الطرق الرئيسية.
2- كمبوند بورتو أكتوبر: يتيح لكم فرصة الاستمتاع بالحياة العصرية ضمن تجمع راق وأنيق، كل ذلك على بُعد خطوات من بادية بالم هيلز، يرافقها التصاميم الفريدة والأسعار التنافسية.
3- كمبوند ييرامديز هيلز: تحفة معمارية توفر مناظر خلابة ووحدات سكنية متنوعة، تقع بالقرب من بادية، مضمونة لتناسب كافة الميزانيات والتفضيلات.
4- كمبوند بالم هيلز اكتوبر: يمتاز بالتصميم المودرن ويستقطب المقيمين بموقعه القريب، حيث يقدم خدمات متكاملة ووحدات سكنية لكافة الشرائح.
5- كمبوند نيو جيزة: يقدم نمط حياة فريد في بيئة متطورة محاطة بالمساحات الخضراء وتتنوع فيها الوحدات لتناسب جميع الاحتياجات والرغبات، كل ذلك بجانب المرافق الحديثة والتصاميم المبتكرة.
استثمر في مستقبلك واختر الوحدة التي تحلم بها في قلب 6 أكتوبر، حيث التميز والخصوصية والراحة تلتقي، مؤكداً أن اختيارك سيكون عنواناً للفخامة والاستقرار.
حديقة خاصة
مسبح خاص
مسبح مشترك
موقف سيارات
منطقة بيع بالتجزئة
ممرات للعجل
طرق للمشاة
نادي
مركز طبي
منطقة تجاريةسيب بياناتك وهيتصل بيك خبير في العقارات في أقرب وقت.